欢迎访问“河南(nán)纵达过滤设备有限公司”官方网站!
滤芯系列(liè) 首页 > 产品中心 > 滤芯系列
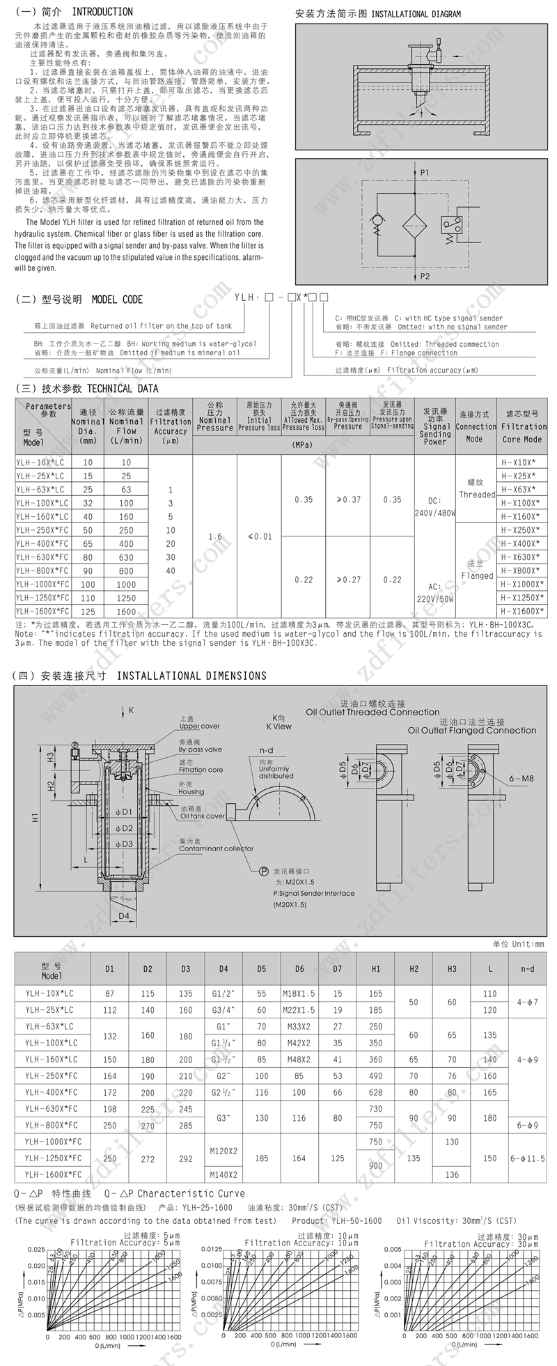
YLH系列箱上回油过滤器

产品类(lèi)别:滤芯系列

产品描述:本过(guò)滤器适(shì)用于液压系(xì)统回油精过滤,用以滤(lǜ)除(chú)液(yè)压系统中由于元件磨损产生的金属颗粒和密封的橡胶杂质等污染物,使流(liú)回油箱的油液保持清洁。

咨询热(rè)线:15090380199

天美麻花星空视频mv_国产麻豆剧传媒精品国产AV_星空天美麻花视频大全_天美麻花星空高清mv_天美麻花星空大象mv视频_天美麻花星空mv免费播放_天美麻花星空大全在线观看免费